Price £2,495 pcm - Available Now - Unfurnished


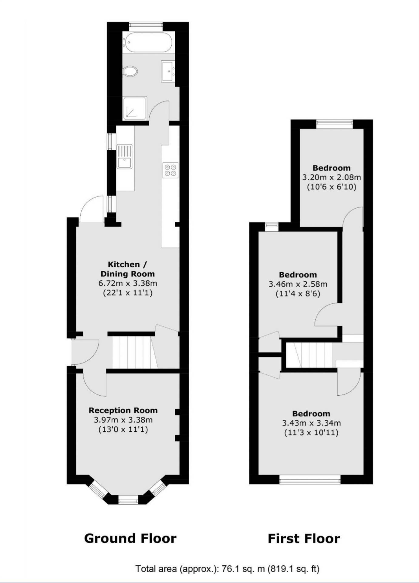
We are pleased to offer this stunning three bedroom period semi detached property, which has recently undergone a full high end refurbishment. Located on the highly sought after Villiers Road. The accommodation comprises a bright front reception room with an attractive bay window. To the rear there is a spacious dining room that leads into a modern fitted kitchen featuring a range of matching base units and quartz contrasting work surfaces. Also on the ground floor is a luxurious bathroom. The first floor consists of three well proportioned bedrooms: two generous doubles and a spacious single bedroom/office
Externally there is a good sized garden with a patio area. Properties of this quality and location seldom come to the open market to which we recommend early internal viewing. Available immediately. Initial 12 month tenancy.



Deposit: £2,878.00

Minimum Tenancy : 12 months

Notice
All photographs are provided for guidance only.

The following are permitted payments which we may request from you:

a) The rent
b) A refundable tenancy deposit (reserved for any damages or defaults on the part of the tenant) capped at no more than five weeks' rent where the annual rent is less than £50,000, or six weeks' rent where the total annual rent is £50,000 or above
c) A refundable holding deposit (to reserve a property) capped at no more than one week's rent
d) Payments to change the tenancy when requested by the tenant, capped at £50, or reasonable costs incurred if higher
e) Payments associated with early termination of the tenancy, when requested by the tenant
f) Payments in respect of utilities, communication services, TV licence and council tax; and
g) A default fee for late payment of rent and replacement of a lost key/security device, where required under a tenancy agreement

Please call us if you wish to discuss this further.
EER Chart

The Energy-Efficiency Rating is a measure of a home's overall efficiency. The higher the rating, the more energy-efficient the home is, and the lower the fuel bills are likely to be.

Utility Supply Type
Electric Mains Supply
Gas Mains Supply
Water Mains Supply
Sewerage Mains Supply
Broadband Unknown
Telephone Landline

Other Items Description
Heating Not Specified
Garden/Outside Space No
Parking No
Garage No

Broadband Coverage Highest Available Download Speed Highest Available Upload Speed
Standard 16 Mbps 1 Mbps
Superfast 80 Mbps 20 Mbps
Ultrafast 1800 Mbps 220 Mbps

Mobile Coverage Indoor Voice Indoor Data Outdoor Voice Outdoor Data
EE Likely Likely Enhanced Enhanced
Three Likely Likely Enhanced Enhanced
O2 Enhanced Likely Enhanced Enhanced
Vodafone Likely Likely Enhanced Enhanced

Broadband and Mobile coverage information supplied by Ofcom.


marker icon