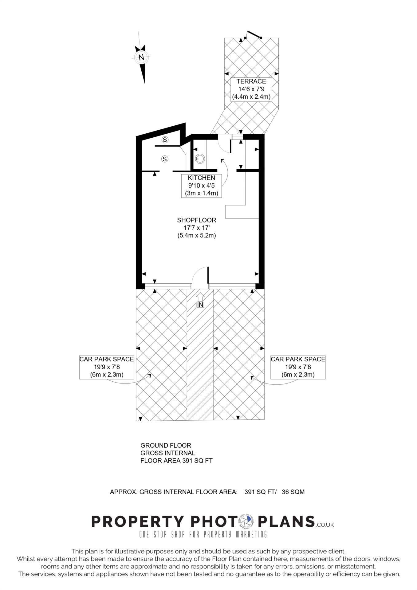
We are pleased to offer this good sized retails shop to let on a new Lease at a very competitive rent. Located along a busy fully let parade the shop benefits from two off road customer parking spaces at the front. The full glazed front makes the shop highly visible from from passing traffic and busy footfall. Located on the busy Mawney Road, any retailer would take full advantage of the constant passing traffic and footfall from this densely populated residential are. Long Lease offered. Units of this quality with car parking rarely become available on the open market, to which we recommend immediate internal viewing.
**please note the shop next door is also available and could be opened up to create a large mini market**
Deposit: £4,125.00
Business Rates
London Borough Of Croydon
Notice
All photographs are provided for guidance only.
| Utility |
Supply Type |
| Electric |
Unknown |
| Gas |
Unknown |
| Water |
Unknown |
| Sewerage |
Unknown |
| Broadband |
Unknown |
| Telephone |
Unknown |
| Other Items |
Description |
| Heating |
Not Specified |
| Garden/Outside Space |
No |
| Parking |
No |
| Garage |
No |
| Broadband Coverage |
Highest Available Download Speed |
Highest Available Upload Speed |
| Standard |
16 Mbps |
1 Mbps |
| Superfast |
80 Mbps |
20 Mbps |
| Ultrafast |
1800 Mbps |
220 Mbps |
| Mobile Coverage |
Indoor Voice |
Indoor Data |
Outdoor Voice |
Outdoor Data |
| EE |
Likely |
Likely |
Enhanced |
Enhanced |
| Three |
Enhanced |
Enhanced |
Enhanced |
Enhanced |
| O2 |
Enhanced |
Enhanced |
Enhanced |
Enhanced |
| Vodafone |
Enhanced |
Enhanced |
Enhanced |
Enhanced |
Broadband and Mobile coverage information supplied by Ofcom.